Skip to Content
会议
会议室详情
黄浦厅 II
会议室详情
会议服务
庆典
索取会议资讯
您正在查看:
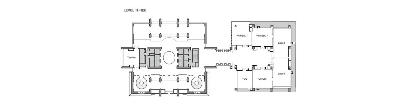
会议室概况
平面图
会议室概况
平面图
会议室概况
规模
893 平方英尺 | 83 平方米
会议室规格
28 x 28 英尺 | 9 x 9 仪表
水晶灯高度
2 仪表 | 7 英尺
座位容量
10人宴会桌
48
招待会
60
会议
24
课桌式
40
U型
22
剧院式
70