Skip to Content
会议
会议室详情
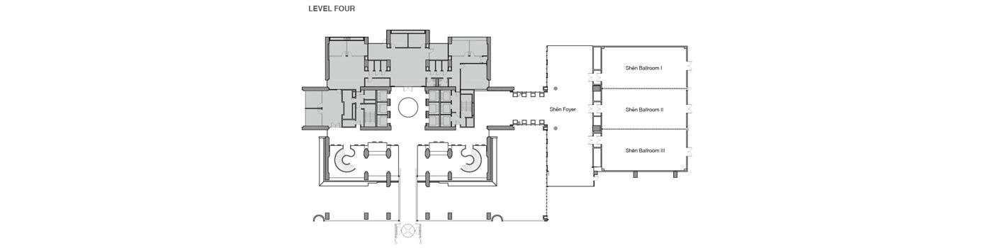
申宴会厅 I
会议室详情
会议服务
庆典
索取会议资讯
您正在查看:
会议室详情
平面图
会议室详情
平面图
会议室概况
规模
1787 平方英尺 | 166 平方米
会议室规格
56 x 27 英尺 | 17 x 8 仪表
水晶灯高度
5 仪表 | 16 英尺
座位容量
10人宴会桌
100
招待会
150
会议
52
课桌式
100
U型
0
剧院式
150